Powered by
ホーム 千代田区の居抜き・セットアップオフィスを探す 【SOHO利用可】2025年12月竣工のハイグレードな新築フルセットアップオフィス

【SOHO利用可】2025年12月竣工のハイグレードな新築フルセットアップオフィス

募集中
エリア:千代田区神田錦町
広さ:〜30坪
席数:10席未満
公開日:2025.11.06

物件のご紹介

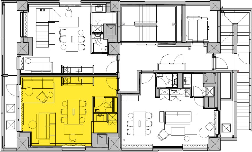
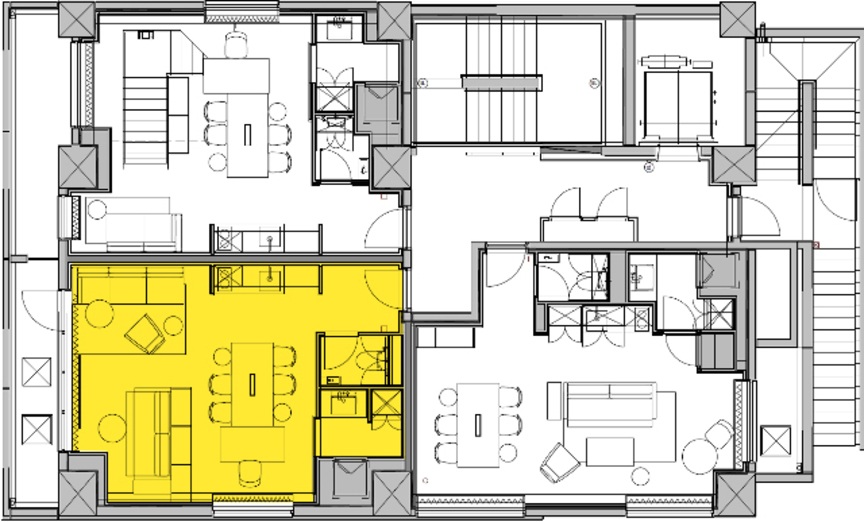
神田エリアで初期フェーズのスタートアップ企業様におすすめの『BIASTA JIMBOCHO』のご紹介です。2025年12月竣工予定で、小川町駅や新御茶ノ水駅、神保町駅など、複数駅が徒歩圏内という、交通利便性の高い新築物件です。募集区画は2階の12.20坪(3〜5席推奨)で、SOHO利用も可能となっています。

本物件最大の特徴は、「オフィス=リビング」をコンセプトに設計された、モダンでスタイリッシュな内装デザイン。内装に合わせたナチュラルな雰囲気の家具・什器まで完備したフルセットアップオフィスのため、移転後、快適な環境でスムーズに業務を開始いただけます。

専有部は小規模向けのレイアウトとなっていますが、1階には予約制の共用会議室2部屋とラウンジ、8階にはルーフテラスが設けられており、コストパフォーマンスに優れた、充実のオフィス環境が整っています。

これだけの設備ながら、敷金が2ヶ月と抑えめなことに加え、原状回復義務もありません。また、SOHO(住居)契約であれば賃料等が非課税となる点も、大きなメリットです。

資料請求や内覧希望の場合は、お気軽にお問い合わせください。

おすすめポイント

  1. 原状回復義務無し、敷金2ヶ月のみで、移転コストを軽減
  2. モダンスタイリッシュな内装デザインの、家具付きフルセットアップオフィス
  3. ラウンジ・会議室(2室)、8階ルーフテラスなど、充実の共用部
  4. SOHO利用可(住居契約のため賃料・共益費は非課税)
  5. 2025年12月竣工予定の新築物件

同ビル別区画の物件はこちら

菅野 勇人

営業担当者

菅野 勇人

宅地建物取引士

セットアップオフィスから一般的なオフィスまで、多種多様なオフィスビルの魅力や特徴を熟知したオフィス物件マニア。

スタートアップ企業の移転支援経験が多く、そこで得た知見を活かし、お客様の理想のオフィス探しを全力でサポートいたします。

この物件を問い合わせる
物件概要
物件番号 fs-3367
物件名 BIASTA JIMBOCHO
所在地 東京都千代田区神田錦町3-14
最寄り駅 都営新宿線
小川町駅 徒歩6分

東京メトロ千代田線
新御茶ノ水駅 徒歩6分

東京メトロ半蔵門線
神保町駅 徒歩7分

都営三田線
神保町駅 徒歩7分

JR 神田駅
徒歩12分
階数 2階B
面積 12.20坪 (40.33m²)
推奨席数 3~5席
物件タイプ フルセットアップオフィス
会議室数 共用会議室(予約制)×2室
竣工年 2025年12月竣工予定
特徴・設備 # 敷金3ヶ月以下 # 原状回復免除 # 家具・什器付き # 共有ラウンジ有り # 屋上 / テラス有り # 男女別トイレ # 新築・築浅 # 2路線利用可
募集条件
月額賃料@坪単価 402,600円 (坪33,000円)
敷金 / 保証金 805,200円 (2ヶ月)
償却
礼金
更新料 / 再契約料
入居可能日 2026年1月予定
契約期間 2年
原状回復有無
保証契約

※表示価格は税抜き価格です。

この物件を問い合わせる

物件のお問い合わせフォーム

オフィス物件を探す

キーワード
カテゴリー

Get In Touch!!

希望条件が決まっていなくても、オフィス移転のプロが要件定義からご一緒させていただきます。まずはお気軽にご相談くださいませ。

お電話でのお問い合わせはこちら

03-6858-3030

平日
9:00~18:00