Powered by
ホーム 千代田区の居抜き・セットアップオフィスを探す 【原状回復義務なし】神保町駅徒歩7分、共用部充実のハイグレードな新築フルセットアップオフィス

【原状回復義務なし】神保町駅徒歩7分、共用部充実のハイグレードな新築フルセットアップオフィス

募集中
エリア:千代田区神田錦町
広さ:30〜60坪
席数:10〜19席
公開日:2025.11.06

物件のご紹介

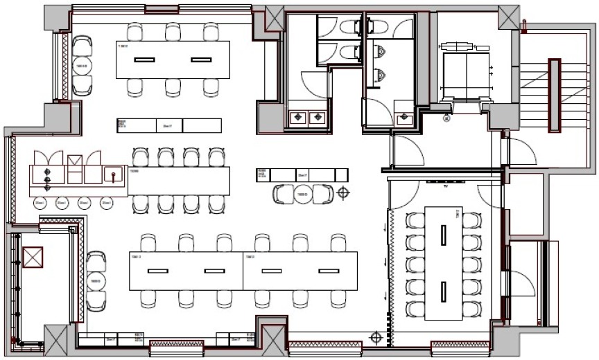
神田エリアで2025年12月竣工予定の、新築フルセットアップオフィス『BIASTA JIMBOCHO』のご紹介です。

当物件は、7階区画の42.99坪、18〜22席推奨のレイアウトとなっており、成長フェーズのスタートアップ企業様に最適です。「オフィス=リビング」をコンセプトに、ナチュラルな家具や間接照明を取り入れた、自宅のリビングのような温かみのある空間デザインが魅力となっています。

専有部に10名用の会議室を備えていることに加え、1階にはカフェのような共用ラウンジや共用会議室2室、8階にはルーフテラスも完備しており、オフィスとしての機能性も申し分ありません。家具什器も備え付けのため、移転もスムーズです。

原状回復義務が不要なため、退去時のコストを大幅に抑えられる点も大きなメリット。資料請求や内覧希望の場合は、ぜひお気軽にお問い合わせください。

おすすめポイント

  1. 「オフィス=リビング」をコンセプトにした、温かみのある空間デザイン
  2. 原状回復義務なしで、退去時のコストを大幅に削減
  3. 専用会議室に加え、ラウンジ・共用会議室・ルーフテラスなど充実の共用部
  4. 家具什器付きで、スムーズな移転を実現するフルセットアップオフィス

同ビル別区画の物件はこちら

菅野 勇人

営業担当者

菅野 勇人

宅地建物取引士

セットアップオフィスから一般的なオフィスまで、多種多様なオフィスビルの魅力や特徴を熟知したオフィス物件マニア。

スタートアップ企業の移転支援経験が多く、そこで得た知見を活かし、お客様の理想のオフィス探しを全力でサポートいたします。

この物件を問い合わせる
物件概要
物件番号 fs-3368
物件名 BIASTA JIMBOCHO
所在地 東京都千代田区神田錦町3-14
最寄り駅 都営新宿線
小川町駅 徒歩6分

東京メトロ千代田線
新御茶ノ水駅 徒歩6分

東京メトロ半蔵門線
神保町駅 徒歩7分

都営三田線
神保町駅 徒歩7分

JR 神田駅
徒歩12分
階数 7階
面積 42.99坪(142.11㎡)
推奨席数 18~22席
物件タイプ フルセットアップオフィス
会議室数 10名掛け会議室×1室
共用会議室(予約制)×2室
竣工年 2025年12月予定
特徴・設備 # 敷金3ヶ月以下 # 原状回復免除 # 家具・什器付き # 会議室付き # 共有ラウンジ有り # 屋上 / テラス有り # 男女別トイレ # 新築・築浅 # 2路線利用可
募集条件
月額賃料@坪単価 1,418,670円(@33,000円)
敷金 / 保証金 2,837,340円(2ヶ月)
償却
礼金
更新料 / 再契約料
入居可能日 2026年1月予定
契約期間 2年
原状回復有無
保証契約

※表示価格は税抜き価格です。

この物件を問い合わせる

物件のお問い合わせフォーム

オフィス物件を探す

キーワード
カテゴリー

Get In Touch!!

希望条件が決まっていなくても、オフィス移転のプロが要件定義からご一緒させていただきます。まずはお気軽にご相談くださいませ。

お電話でのお問い合わせはこちら

03-6858-3030

平日
9:00~18:00