Powered by
ホーム 千代田区の居抜き・セットアップオフィスを探す 【原状回復不要】神保町駅徒歩7分、充実の共用設備が魅力の新築フルセットアップオフィス

【原状回復不要】神保町駅徒歩7分、充実の共用設備が魅力の新築フルセットアップオフィス

募集中
エリア:千代田区神田錦町
広さ:30〜60坪
席数:10〜19席
公開日:2026.03.13

物件のご紹介

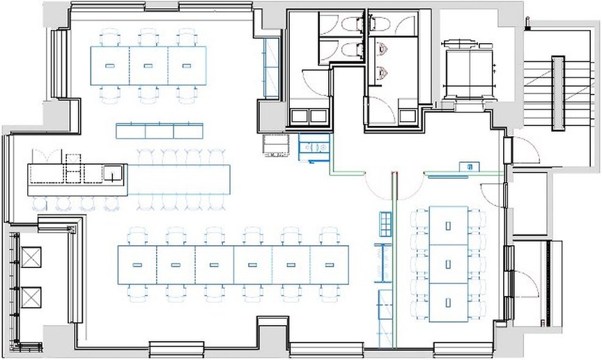
東京・大手町・新宿など、主要ビジネス街へのアクセスにも優れた神田エリア。このエリアで新たな拠点をお探しのスタートアップ・ベンチャー企業様におすすめの、2025年12月竣工の新築ビル『BIASTA JIMBOCHO』をご紹介します。

ご紹介の区画は45.03坪(148.87㎡)のフルセットアップオフィスで、木目調のフローリングと壁面、スタイリッシュなスケルトン天井が調和したモダンで温かみのある空間です。

18席の家具・什器付き執務スペースに加え、10名掛けの広々とした会議室1室を完備。1階には共用ラウンジ「ENGAWA LOUNGE」と予約制の共用会議室2部屋(3名用・6名用)、8階にはルーフテラス「IRORI BAR」まで備え、日々の快適な執務環境を支える設備が充実しています。

原状回復義務が不要で(現状変更・破損等を除く)、退去時のコストを大幅に抑えることができるのも、資金繰りを重視される企業にとって大きなメリットです。

内覧のご相談や詳細についてはぜひお気軽にお問い合わせください。

※掲載写真は他フロアを撮影した参考写真です。

おすすめポイント

  1. 原状回復義務が不要、退去時コストを削減
  2. 2025年12月竣工の新築ビル
  3. 内装・家具完備の便利なフルセットアップオフィス
  4. 共用ラウンジ・共用会議室・ルーフテラスなど充実した共用設備

同ビル別区画の物件はこちら

菅野 勇人

営業担当者

菅野 勇人

宅地建物取引士

セットアップオフィスから一般的なオフィスまで、多種多様なオフィスビルの魅力や特徴を熟知したオフィス物件マニア。

スタートアップ企業の移転支援経験が多く、そこで得た知見を活かし、お客様の理想のオフィス探しを全力でサポートいたします。

この物件を問い合わせる
物件概要
物件番号 fs-3491
物件名 BIASTA JIMBOCHO
所在地 東京都千代田区神田錦町3-14-1
最寄り駅 都営新宿線
小川町駅 徒歩6分

東京メトロ千代田線
新御茶ノ水駅 徒歩6分

東京メトロ半蔵門線
神保町駅 徒歩7分

都営三田線
神保町駅 徒歩7分

JR 神田駅
徒歩12分
階数 4階
面積 45.03坪(148.87㎡)
推奨席数 18席
物件タイプ フルセットアップオフィス
会議室数 10名掛け会議室×1室
竣工年 2025年12月
特徴・設備 # 敷金3ヶ月以下 # 原状回復免除 # 家具・什器付き # 会議室付き # スケルトン天井 # 男女別トイレ # 共有ラウンジ有り # 屋上 / テラス有り # 新築・築浅 # 2路線利用可
募集条件
月額賃料@坪単価 1,666,110円(坪 37,000円)
敷金 / 保証金 2ヶ月(3,332,220円)
償却
礼金
更新料 / 再契約料
入居可能日 相談
契約期間 2年
原状回復有無
保証契約

※表示価格は税抜き価格です。

この物件を問い合わせる

物件のお問い合わせフォーム

オフィス物件を探す

キーワード
カテゴリー

Get In Touch!!

希望条件が決まっていなくても、オフィス移転のプロが要件定義からご一緒させていただきます。まずはお気軽にご相談くださいませ。

お電話でのお問い合わせはこちら

03-6858-3030

平日
9:00~18:00