Powered by
ホーム 品川・目黒区の居抜き・セットアップオフィスを探す 五反田駅徒歩7分!共用部充実のリニューアル済セットアップオフィス

五反田駅徒歩7分!共用部充実のリニューアル済セットアップオフィス

募集終了
当社貸主物件
仲介手数料無料
エリア:品川・目黒区
広さ:80〜100坪
席数:40〜59席
公開日:2024.11.26

物件のご紹介

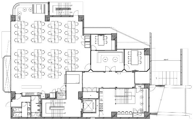
『TERRACE SITE GOTANDA』は、JR「五反田駅」徒歩7分という好立地、西五反田のビジネス中心地にある、内装付きセットアップオフィスです。

貸室内はリニューアル済で、最新設備を備えた快適なオフィス環境を実現。木目調の壁面を随所に取り入れており、モダンで高級感がありながら、どこか温かみのある、リラックスして業務に取り組むことができるオフィスデザインが魅力です。

54席推奨の執務室に加え、4名用/6名用会議室各1室とテレカンブース3室を備えており、スピード感を重視するスタートアップ企業様にはぴったりの、入居後すぐに業務開始可能な内装・設備が整っています。

ビル内部共用のラウンジスペースでは、8名用会議室が2室にテレカンブース4室、さらにファミレス席に集中ブース(4席)と、充実の共用設備が利用可能。専用貸室と併せ、入居企業様に様々なシーンでご活用いただける、機能性の高い設計となっています。

成長・拡大フェーズのスタートアップ企業様に、フレキシブルで快適なオフィス環境を提供いたします。
ご関心をお持ちの企業様は、ぜひお早めにお問い合わせください。

おすすめポイント

  1. 当社貸主物件のため仲介手数料不要
  2. JR「五反田駅」徒歩7分の好立地にある、人気の内装付きセットアップオフィス
  3. 4名用/6名用会議室とテレカンブース2室完備で、入居後すぐに業務開始が可能
  4. 入居企業様向け共用設備充実で、拡大フェーズのスタートアップ企業様に最適

同一ビル内の他のオフィス

菅野 勇人

営業担当者

菅野 勇人

宅地建物取引士

 

セットアップオフィスから一般的なオフィスまで、多種多様なオフィスビルの魅力や特徴を熟知したオフィス物件マニア。

スタートアップ企業の移転支援経験が多く、そこで得た知見を活かし、お客様の理想のオフィス探しを全力でサポートいたします。

この物件を問い合わせる
物件概要
物件番号 s-2088
物件名 TERRACE SITE GOTANDA
所在地 東京都品川区西五反田3-6-32
最寄り駅 JR五反田駅
徒歩7分

都営浅草線
五反田駅 徒歩7分

東急目黒線
不動前駅 徒歩9分
階数 1階
面積 85.42坪 / 282.41m²
推奨席数 54席
物件タイプ セットアップオフィス
会議室数 4名掛け会議室×1
6名掛け会議室×1
テレカンブース数 3室
竣工年 1990年11月
特徴・設備 # 家具・什器付き # テレカンブース付き # 会議室付き # 共有ラウンジ有り # 男女別トイレ # スケルトン天井 # 2路線利用可
募集条件
月額賃料@坪単価 ¥2,391,760円(坪28,000円)
敷金 / 保証金 14,350,560円(6ヶ月)
償却
礼金
更新料 / 再契約料
入居可能日 即日
契約期間 2年
原状回復有無
保証契約

※表示価格は税抜き価格です。

この物件を問い合わせる

物件のお問い合わせフォーム

オフィス物件を探す

キーワード
カテゴリー

Get In Touch!!

希望条件が決まっていなくても、オフィス移転のプロが要件定義からご一緒させていただきます。まずはお気軽にご相談くださいませ。

お電話でのお問い合わせはこちら

03-6858-3030

平日
9:00~18:00