Powered by
ホーム 品川・目黒区の居抜き・セットアップオフィスを探す 五反田駅徒歩7分、最新設備を備えたリニューアル済セットアップオフィス

五反田駅徒歩7分、最新設備を備えたリニューアル済セットアップオフィス

募集終了
当社貸主物件
仲介手数料無料
エリア:品川・目黒区
広さ:30〜60坪
席数:20〜39席
公開日:2024.11.26

物件のご紹介

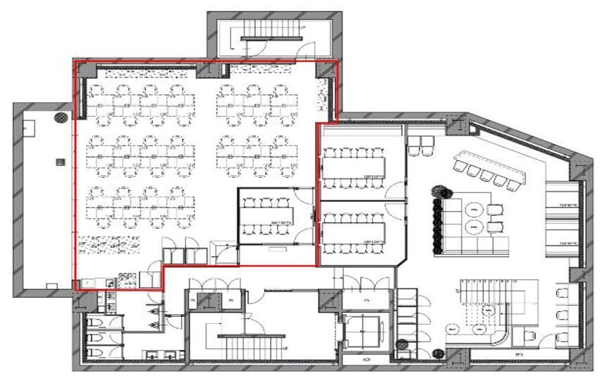
西五反田のビジネス中心地に誕生するセットアップオフィス『TERRACE SITE GOTANDA』。
JR「五反田駅」から徒歩7分という利便性に優れたロケーションが魅力です。

リニューアル済みの専用貸室内はOAフロア、個別空調、男女別トイレを完備し、最新設備の快適な執務環境を提供。
オフィス設備としては36席推奨の執務室に加え、6名用会議室1室とテレカンブース3室を完備しており、入居後すぐに業務を開始できる、成長を加速させたいスタートアップ企業様に最適な環境が整っています。

内装にはアートが施されたデザイン性の高い壁紙や木目調のデザインを採用し、創造性を刺激しつつも、温もりと安心感のある空間を演出しています。

入居企業様専用の共用ラウンジには、8名用会議室2室にテレカンブース4室、さらにファミレスブースや集中ブースまで、多様な働き方を支援する充実のスペースをご用意。専用貸室と合わせて、様々なビジネスシーンにご活用いただけます。

詳細については、ぜひお気軽にお問い合わせください。

おすすめポイント

  1. 当社貸主物件のため仲介手数料不要 
  2. 五反田駅徒歩7分、西五反田のビジネス中心地に位置するセットアップオフィス
  3. 専有部に6名用会議室とテレカンブース3室を完備し、入居後すぐに業務開始可能
  4. 共用スペースでは会議室2室に加え、テレカンブースをはじめとした多様なワークスペースも提供

同一ビル内の他のオフィス

菅野 勇人

営業担当者

菅野 勇人

宅地建物取引士

 

セットアップオフィスから一般的なオフィスまで、多種多様なオフィスビルの魅力や特徴を熟知したオフィス物件マニア。

スタートアップ企業の移転支援経験が多く、そこで得た知見を活かし、お客様の理想のオフィス探しを全力でサポートいたします。

この物件を問い合わせる
物件概要
物件番号 s-2093
物件名 TERRACE SITE GOTANDA
所在地 東京都品川区西五反田3-6-32
最寄り駅 JR五反田駅
徒歩7分

都営浅草線
五反田駅 徒歩7分

東急目黒線
不動前駅 徒歩9分
階数 B1F
面積 45.40坪 / 150.11m²
推奨席数 36席
物件タイプ セットアップオフィス
会議室数 6名掛け会議室×1
テレカンブース数 3室
竣工年 1990年11月
特徴・設備 # テレカンブース付き # 会議室付き # 男女別トイレ # スケルトン天井 # 2路線利用可 # 共有ラウンジ有り
募集条件
月額賃料@坪単価 ¥1,044,200円(坪23,000円)
敷金 / 保証金 6,265,200円(6ヶ月)
償却
礼金
更新料 / 再契約料
入居可能日 即日
契約期間 2年
原状回復有無
保証契約

※表示価格は税抜き価格です。

この物件を問い合わせる

物件のお問い合わせフォーム

オフィス物件を探す

キーワード
カテゴリー

Get In Touch!!

希望条件が決まっていなくても、オフィス移転のプロが要件定義からご一緒させていただきます。まずはお気軽にご相談くださいませ。

お電話でのお問い合わせはこちら

03-6858-3030

平日
9:00~18:00