Powered by
ホーム 品川・目黒区の居抜き・セットアップオフィスを探す 五反田駅徒歩7分!貴重な120坪超えの大型セットアップオフィス

五反田駅徒歩7分!貴重な120坪超えの大型セットアップオフィス

募集終了
当社貸主物件
仲介手数料無料
エリア:品川・目黒区
広さ:100坪〜
席数:60席〜
公開日:2024.11.26

物件のご紹介


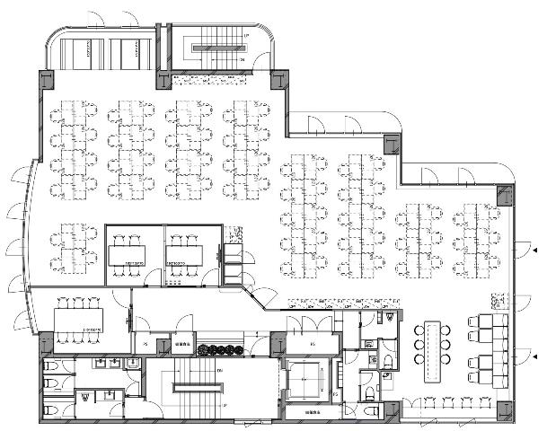
五反田駅徒歩7分というアクセス抜群の立地に、セットアップオフィスでは貴重な120坪超えの大型物件が登場しました!「TERRACE SITE GOTANDA 4F」がある五反田駅周辺は、「五反田バレー」という呼称があり、近年スタートアップ企業やIT系企業の集積地として人気の高いエリアです。
スタートアップコミュニティが活発で、飲食店も多いことからビジネス交流会が頻繁に開催されている、スタートアップにおすすめのエリアとなります。

専有貸室はOAフロアや個別空調など、快適なオフィス環境をご用意。会議室が3室とテレカンブース2室完備で、様々なMTG形態に対応可能です。
内装は木目調で高級感のあるデザインとなっており、自社のブランディングイメージ向上や採用強化にも活かせる空間となっております。

また、ビル内の共用ラウンジには、8名用会議室が2室、ファミレスブース2セット、テレカンブース4室、集中ブース4台と充実したスペースをご用意しており、こちらは「TERRACE SITE GOTANDA」にご入居されている企業様が利用可能です。
自社で全て揃えると工事費や家具費がかなりかかる設備ですので、付帯設備が多い点が魅力な物件です。
現在リニューアル工事中のため、最新仕様でのオフィス空間を提供予定です。ぜひお早めにお問い合わせください!

おすすめポイント

  1. 五反田駅徒歩7分でアクセス抜群、好立地のセットアップオフィス。
  2. 会議室が3室とテレカンブース2室完備で様々なMTGに対応可能
  3. ビルの共用スペース設備も充実!会議室や集中ブース、ファミレスブース完備

同一ビル内の他のオフィス

菅野 勇人

営業担当者

菅野 勇人

宅地建物取引士

 

セットアップオフィスから一般的なオフィスまで、多種多様なオフィスビルの魅力や特徴を熟知したオフィス物件マニア。

スタートアップ企業の移転支援経験が多く、そこで得た知見を活かし、お客様の理想のオフィス探しを全力でサポートいたします。

この物件を問い合わせる
物件概要
物件番号 s-2092
物件名 TERRACE SITE GOTANDA
所在地 東京都品川区西五反田3-6-32
最寄り駅 JR五反田駅
徒歩7分

都営浅草線
五反田駅 徒歩7分

東急目黒線
不動前駅 徒歩9分
階数 4F
面積 115.20坪 / 380.83m²
推奨席数 68席
物件タイプ セットアップオフィス
会議室数 4名掛け会議室×2
6名掛け会議室×1
テレカンブース数 2室
竣工年 1990年11月
特徴・設備 # テレカンブース付き # 会議室付き # 男女別トイレ # スケルトン天井 # 2路線利用可
募集条件
月額賃料@坪単価 ¥3,225,600円(@28,000円 / 坪
敷金 / 保証金 19,353,600円(6ヶ月)
償却
礼金
更新料 / 再契約料
入居可能日 相談
契約期間 2年
原状回復有無
保証契約

※表示価格は税抜き価格です。

この物件を問い合わせる

物件のお問い合わせフォーム

オフィス物件を探す

キーワード
カテゴリー

Get In Touch!!

希望条件が決まっていなくても、オフィス移転のプロが要件定義からご一緒させていただきます。まずはお気軽にご相談くださいませ。

お電話でのお問い合わせはこちら

03-6858-3030

平日
9:00~18:00