Powered by
ホーム 品川・目黒区の居抜き・セットアップオフィスを探す 五反田駅徒歩7分!スケルトン天井がおしゃれなセットアップオフィス

五反田駅徒歩7分!スケルトン天井がおしゃれなセットアップオフィス

募集終了
当社貸主物件
仲介手数料無料
エリア:品川・目黒区
広さ:60〜80坪
席数:40〜59席
公開日:2025.10.01

物件のご紹介


西五反田のビジネス中心地にあるセットアップオフィス「TERRACE SITE GOTANDA」。五反田駅徒歩7分、2路線利用可能とアクセス抜群の立地にございます。
五反田駅周辺は山手線沿線の中でも比較的賃料がリーズナブルですが、飲食店が多くスタートアップ企業の交流会が頻繁に開催されるなど、事業にお金を回したい、企業同士の繋がりを濃くしたい急成長中のスタートアップ企業に人気のエリアです。

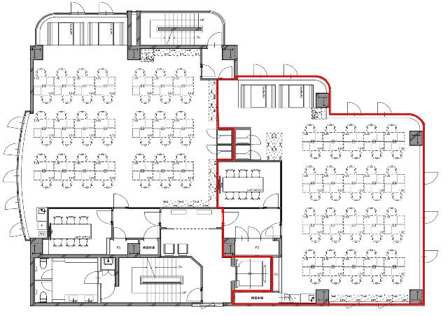
専有貸室の内装は木目を基調としたデザインで、ホテルのような高級感のある空間となっております。OAフロアや男女別トイレなど、ご要望の多い設備を設置しており快適なオフィス環境を実現。会議室2室とテレカンブース2室を予めご用意しているため、デザイン性の高い空間を活かしながら、自社に合う家具を設置できる”良いとこ取り”なオフィス物件となっております。

さらに、ビルの共用ラウンジ設備は、会議室が2室、テレカンブース4室、集中ブース4台、ファミレスブース2台と多機能なスペースをご用意しております。専有貸室には自社に合う家具を設置し、共有ラウンジで気分転換しながら働くなど、気分に合わせて働く場を選べる”従業員ファースト”なオフィスが実現できます。
現在リニューアル工事中のため、最新仕様でのオフィス空間を提供予定です。ぜひ早めにご相談ください!

おすすめポイント

  1. 当社貸主物件のため仲介手数料不要
  2. 五反田駅徒歩7分でアクセス抜群、好立地のセットアップオフィス。
  3. おしゃれな内装デザインを活かしながら、家具は自社仕様にカスタマイズ可
  4. 充実したビルの共用スペースも使用可能なため、従業員にファーストな企業様におすすめ

同一ビル内の他のオフィス

菅野 勇人

営業担当者

菅野 勇人

宅地建物取引士

 

セットアップオフィスから一般的なオフィスまで、多種多様なオフィスビルの魅力や特徴を熟知したオフィス物件マニア。

スタートアップ企業の移転支援経験が多く、そこで得た知見を活かし、お客様の理想のオフィス探しを全力でサポートいたします。

この物件を問い合わせる
物件概要
物件番号 s-2091
物件名 TERRACE SITE GOTANDA
所在地 東京都品川区西五反田3-6-32
最寄り駅 JR五反田駅
徒歩7分

都営浅草線
五反田駅 徒歩7分

東急目黒線
不動前駅 徒歩9分
階数 3階B
面積 60.52坪 / 200.07m²
推奨席数 40席
物件タイプ セットアップオフィス
会議室数 6名掛け会議室×2
テレカンブース数 2室
竣工年 1990年11月
特徴・設備 # テレカンブース付き # 会議室付き # 男女別トイレ # スケルトン天井 # 2路線利用可 # 共有ラウンジ有り
募集条件
月額賃料@坪単価 ¥1,724,820円(坪28,500円)
敷金 / 保証金 10,348,920円(6ヶ月)
償却
礼金
更新料 / 再契約料
入居可能日 即日
契約期間 2年
原状回復有無
保証契約

※表示価格は税抜き価格です。

この物件を問い合わせる

物件のお問い合わせフォーム

オフィス物件を探す

キーワード
カテゴリー

Get In Touch!!

希望条件が決まっていなくても、オフィス移転のプロが要件定義からご一緒させていただきます。まずはお気軽にご相談くださいませ。

お電話でのお問い合わせはこちら

03-6858-3030

平日
9:00~18:00