Powered by
ホーム 新宿区の居抜き・セットアップオフィスを探す 【仲介手数料不要】飯田橋駅徒歩7分、ホテルライクなラウンジ付きセットアップオフィス

【仲介手数料不要】飯田橋駅徒歩7分、ホテルライクなラウンジ付きセットアップオフィス

募集中
当社貸主物件
仲介手数料無料
エリア:新宿区新小川町
広さ:100坪〜
席数:40〜59席
公開日:2025.11.14

物件のご紹介

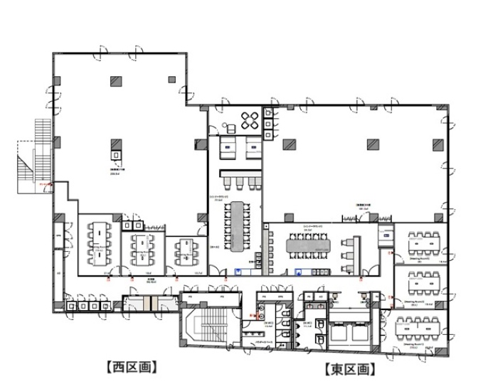
JR・東京メトロ・都営地下鉄の3路線が乗り入れる飯田橋駅。その徒歩圏内に、ホテルライクな高級感のあるセットアップオフィス『THE PORTAL iidabashi』が誕生します。広さ116.32坪(384.54㎡)で、50〜60名規模の大規模スタートアップ企業様に最適な空間です。

本物件は、高い機能性とデザイン性を両立している点が大きなポイント。8名用2室と10名用1室の計3室の会議室に加え、ソロワークに集中できるテレカンブースも3席完備。さらに、ビッグテーブルやカウンター席、ファミレス席などを備えた専用ラウンジは、社員の交流やカジュアルな打ち合わせなど、多様な働き方をサポートします。壁面に配置されたアートが目を引く上質な内装も、魅力にあふれています。

当社貸主物件のため仲介手数料は不要で、移転に伴う初期費用を大幅に抑えることができます。
人気の出ることが予想されますので、まずは詳細情報をご確認のうえ、資料請求などはお気軽にお問い合わせください。

おすすめポイント

  1. 当社貸主物件のため【仲介手数料不要】
  2. 8名用と10名用の会議室を計3室、テレカンブースも3席完備したセットアップオフィス
  3. ビッグテーブル・カウンター席など、多様な席種を設けた専用ラウンジ
  4. 壁面のアートが彩る、ホテルライクで高級感のある内装デザイン

同ビル内別区画の物件はこちら

菅野 勇人

営業担当者

菅野 勇人

宅地建物取引士

セットアップオフィスから一般的なオフィスまで、多種多様なオフィスビルの魅力や特徴を熟知したオフィス物件マニア。

スタートアップ企業の移転支援経験が多く、そこで得た知見を活かし、お客様の理想のオフィス探しを全力でサポートいたします。

この物件を問い合わせる
物件概要
物件番号 s-2290
物件名 THE PORTAL IIDABASHI
所在地 東京都新宿区新小川町8-30
最寄り駅 東京メトロ有楽町線
飯田橋駅 徒歩7分

JR 飯田橋駅
徒歩10分

都営大江戸線
飯田橋駅 徒歩7分
階数 2階東
面積 116.32坪(384.54㎡)
推奨席数 50~60席
物件タイプ セットアップオフィス
会議室数 8名掛け会議室×2室
10名掛け会議室×1室
テレカンブース数 3室
竣工年 1991年10月
特徴・設備 # テレカンブース付き # 会議室付き # 男女別トイレ # 駐車場有り # 2路線利用可
募集条件
月額賃料@坪単価 2,908,000円(坪25,000円)
敷金 / 保証金 23,264,000円(8ヶ月)
償却
礼金
更新料 / 再契約料
入居可能日 2026年1月
契約期間 2年
原状回復有無
保証契約

※表示価格は税抜き価格です。

この物件を問い合わせる

物件のお問い合わせフォーム

オフィス物件を探す

キーワード
カテゴリー

Get In Touch!!

希望条件が決まっていなくても、オフィス移転のプロが要件定義からご一緒させていただきます。まずはお気軽にご相談くださいませ。

お電話でのお問い合わせはこちら

03-6858-3030

平日
9:00~18:00