Powered by
ホーム 新宿区の居抜き・セットアップオフィスを探す 【仲介手数料不要】飯田橋駅徒歩7分、2025年10月リニューアルのセットアップオフィス

【仲介手数料不要】飯田橋駅徒歩7分、2025年10月リニューアルのセットアップオフィス

募集中
当社貸主物件
仲介手数料無料
エリア:新宿区新小川町
広さ:80〜100坪
席数:40〜59席
公開日:2026.01.19

物件のご紹介

JR中央線をはじめ5路線が利用可能な「飯田橋駅」から徒歩7分の立地に、飯田橋の街に馴染むデザイン性の高いセットアップオフィス『THE PORTAL iidabashi』が登場します。

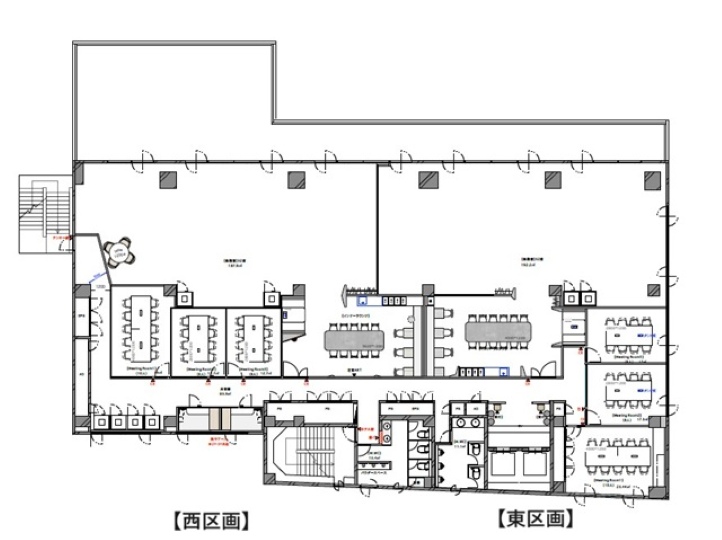
ご紹介する区画は95.45坪(315.57㎡)、40〜50名規模の大規模スタートアップ企業様に最適な空間。2025年10月にセットアップ工事が完了したばかりで、木目調と高級感のあるフロアタイルが調和した、和モダンで落ち着きのある内装にデザインされています。

機能面でも充実しており、専有部には8名用2室・10名用1室の計3室の会議室と、2つのテレカンブース、まるでホテルのようなラウンジスペースまで完備。さらに、東区画との共用スペースでは仕様の異なる複数の個室ブースが利用可能で、多様な働き方に対応した快適なワークスペースを提供します。

仲介手数料不要のため、スタートアップ企業様からもご要望の多い、初期コストを抑えたスピーディーな移転が実現可能です。ご関心がございましたら、ぜひお早めにお問い合わせください。

おすすめポイント

  1. 当社貸主物件のため【仲介手数料不要】
  2. JR・東京メトロ・都営地下鉄の5路線が利用可能な「飯田橋駅」徒歩7分の好立地
  3. 会議室3室・テレカンブース2室に専用ラウンジまで備えた、充実のセットアップオフィス
  4. 東区画共用の複数の個室も利用可能
  5. 木目調とフロアタイルが美しい、和モダンで落ち着いた内装デザイン

同ビル内別区画の物件はこちら

菅野 勇人

営業担当者

菅野 勇人

宅地建物取引士

セットアップオフィスから一般的なオフィスまで、多種多様なオフィスビルの魅力や特徴を熟知したオフィス物件マニア。

スタートアップ企業の移転支援経験が多く、そこで得た知見を活かし、お客様の理想のオフィス探しを全力でサポートいたします。

この物件を問い合わせる
物件概要
物件番号 s-2301
物件名 THE PORTAL IIDABASHI
所在地 東京都新宿区新小川町8-30
最寄り駅 東京メトロ有楽町線
飯田橋駅 徒歩7分

都営大江戸線
飯田橋駅 徒歩7分

東京メトロ南北線
飯田橋駅 徒歩8分

東京メトロ東西線
飯田橋駅 徒歩9分

JR 飯田橋駅
徒歩10分
階数 3階西
面積 95.45坪(315.57㎡)
推奨席数 40~50席
物件タイプ セットアップオフィス
会議室数 8名掛け会議室×2室
10名掛け会議室×1室
テレカンブース数 2室
竣工年 1991年10月
特徴・設備 # テレカンブース付き # 会議室付き # 男女別トイレ # 2路線利用可
募集条件
月額賃料@坪単価 2,386,250円(@25,000円)
敷金 / 保証金 19,090,000円(8ヶ月)
償却
礼金
更新料 / 再契約料
入居可能日 相談
契約期間 2年
原状回復有無
保証契約

※表示価格は税抜き価格です。

この物件を問い合わせる

物件のお問い合わせフォーム

オフィス物件を探す

キーワード
カテゴリー

Get In Touch!!

希望条件が決まっていなくても、オフィス移転のプロが要件定義からご一緒させていただきます。まずはお気軽にご相談くださいませ。

お電話でのお問い合わせはこちら

03-6858-3030

平日
9:00~18:00