Powered by
ホーム 新宿区の居抜き・セットアップオフィスを探す 【仲介手数料不要】飯田橋駅徒歩7分、和モダンな内装で機能性抜群のセットアップオフィス

【仲介手数料不要】飯田橋駅徒歩7分、和モダンな内装で機能性抜群のセットアップオフィス

募集中
当社貸主物件
仲介手数料無料
エリア:新宿区新小川町
広さ:100坪〜
席数:40〜59席
公開日:2025.11.14

物件のご紹介

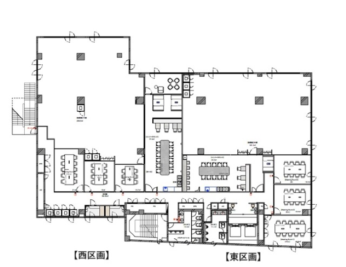
飯田橋駅付近で理想のオフィスをお探しの企業様におすすめしたい、セットアップオフィス『THE PORTAL iidabashi』(西区画)のご紹介です。

128坪超の広々としたオフィス内部は、50〜60名規模の成長フェーズのスタートアップ企業様に最適なレイアウト。ダークトーンの木目調の内装と、随所に採用された落ち着いたグリーンの色調が、和モダンで高級感のある雰囲気を演出します。

本物件最大の魅力は、柔軟な働き方に対応できる、その高い機能性です。落ち着いた雰囲気の執務スペースでは、天井のやわらかな間接照明が快適な空間を演出し、リラックスして業務に取り組めます。設備面では、6名・8名・10名用と多様なサイズの会議室を計3室、テレカンブースも3席完備しており、会議スペース不足に悩むことはありません。

専用のラウンジスペースでは、個人作業に最適なビッグテーブルに加え、格子で仕切られた半個室スペースも備え、業務内容に合わせて柔軟にスペースを活用できます。

当社貸主物件のため【仲介手数料不要】となっており、初期コストを大幅に削減できる点も嬉しいポイントです。ご関心がございましたら、ぜひお早めにお問い合わせください。

おすすめポイント

  1. 当社貸主物件のため【仲介手数料不要】
  2. ダークトーンとグリーンが調和する、和モダンで高級感のある内装デザイン
  3. 大小3つの会議室に加え、柔軟な働き方に対応した専用ラウンジも完備
  4. 50〜60名規模に対応する、128坪超の広々とした執務空間

同ビル内別区画の物件はこちら

菅野 勇人

営業担当者

菅野 勇人

宅地建物取引士

セットアップオフィスから一般的なオフィスまで、多種多様なオフィスビルの魅力や特徴を熟知したオフィス物件マニア。

スタートアップ企業の移転支援経験が多く、そこで得た知見を活かし、お客様の理想のオフィス探しを全力でサポートいたします。

この物件を問い合わせる
物件概要
物件番号 s-2291
物件名 THE PORTAL IIDABASHI
所在地 東京都新宿区新小川町8-30
最寄り駅 東京メトロ有楽町線
飯田橋駅 徒歩7分

JR 飯田橋駅
徒歩10分

都営大江戸線
飯田橋駅 徒歩7分
階数 2階西
面積 128.87坪(426.02㎡)
推奨席数 50~60席
物件タイプ セットアップオフィス
会議室数 6名掛け会議室×1室
8名掛け会議室×1室
10名掛け会議室×1室
テレカンブース数 3室
竣工年 1991年10月
特徴・設備 # テレカンブース付き # 会議室付き # 男女別トイレ # 駐車場有り # 2路線利用可
募集条件
月額賃料@坪単価 3,221,750円(坪25,000円)
敷金 / 保証金 25,774,000円(8ヶ月)
償却
礼金
更新料 / 再契約料
入居可能日 2026年1月
契約期間 2年
原状回復有無
保証契約

※表示価格は税抜き価格です。

この物件を問い合わせる

物件のお問い合わせフォーム

オフィス物件を探す

キーワード
カテゴリー

Get In Touch!!

希望条件が決まっていなくても、オフィス移転のプロが要件定義からご一緒させていただきます。まずはお気軽にご相談くださいませ。

お電話でのお問い合わせはこちら

03-6858-3030

平日
9:00~18:00