Powered by
ホーム 新宿区の居抜き・セットアップオフィスを探す 【仲介手数料不要】飯田橋駅付近、専用ラウンジ・会議室3室完備のセットアップオフィス

【仲介手数料不要】飯田橋駅付近、専用ラウンジ・会議室3室完備のセットアップオフィス

募集中
当社貸主物件
仲介手数料無料
エリア:新宿区新小川町
広さ:100坪〜
席数:40〜59席
公開日:2026.03.20

物件のご紹介

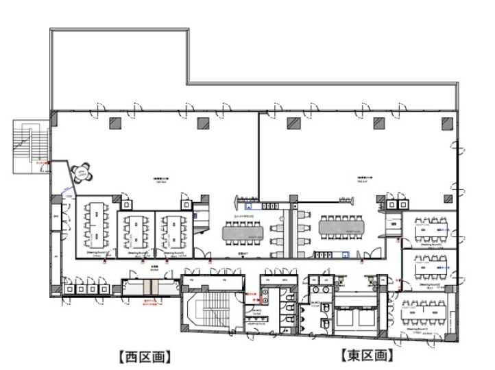
落ち着いた雰囲気が魅力の飯田橋エリアで、充実の設備を誇るセットアップオフィス『THE PORTAL iidabashi(3階東区画)』をご紹介します。JRや東京メトロなど複数路線が利用可能な「飯田橋」駅から徒歩圏内と、交通の利便性に優れた立地です。

ご紹介の区画は104.27坪の広々とした空間で、40〜50名での利用を想定。拡大フェーズのスタートアップ企業様に最適なレイアウトです。2025年10月に完了した内装セットアップ工事により、内装は高級感のあるモダンなデザインに生まれ変わりました。

セットアップオフィスとして会議室3室とテレカンブース2室、そしてリフレッシュや打ち合わせに活用できる専用ラウンジが設置されており、加えて、西区画との共用スペースでは仕様の異なる複数の個室ブースが利用可能で、多様な働き方に対応した充実のワークスペースを提供しています。

当社貸主物件のため「仲介手数料不要」である点も、資金繰りが重要なスタートアップ企業様におすすめできるポイントです。ご関心がございましたら、ぜひお早めにお問い合わせください。

おすすめポイント

  1. 当社貸主物件のため【仲介手数料不要】
  2. 会議室3室・テレカンブース2室・専用ラウンジを備えた、充実のセットアップオフィス
  3. 西区画共用の複数の個室も利用可能
  4. 2025年10月工事完了、デザイン性の高い内装と新しい設備

同ビル内別区画の物件はこちら

菅野 勇人

営業担当者

菅野 勇人

宅地建物取引士

セットアップオフィスから一般的なオフィスまで、多種多様なオフィスビルの魅力や特徴を熟知したオフィス物件マニア。

スタートアップ企業の移転支援経験が多く、そこで得た知見を活かし、お客様の理想のオフィス探しを全力でサポートいたします。

この物件を問い合わせる
物件概要
物件番号 s-2300
物件名 THE PORTAL IIDABASHI
所在地 東京都新宿区新小川町8-30
最寄り駅 東京メトロ有楽町線
飯田橋駅 徒歩7分

都営大江戸線
飯田橋駅 徒歩7分

東京メトロ南北線
飯田橋駅 徒歩8分

東京メトロ東西線
飯田橋駅 徒歩9分

JR 飯田橋駅
徒歩10分
階数 3階東
面積 104.27坪(344.72㎡)
推奨席数 40~50席
物件タイプ セットアップオフィス
会議室数 8名掛け会議室×2室
10名掛け会議室×1室
テレカンブース数 2室
竣工年 1991年10月
特徴・設備 # テレカンブース付き # 会議室付き # 男女別トイレ # 2路線利用可
募集条件
月額賃料@坪単価 2,606,750円(@25,000円)
敷金 / 保証金 20,854,000円(8ヶ月)
償却
礼金
更新料 / 再契約料
入居可能日 2025年10月中旬予定
契約期間 2年
原状回復有無
保証契約

※表示価格は税抜き価格です。

この物件を問い合わせる

物件のお問い合わせフォーム

オフィス物件を探す

キーワード
カテゴリー

Get In Touch!!

希望条件が決まっていなくても、オフィス移転のプロが要件定義からご一緒させていただきます。まずはお気軽にご相談くださいませ。

お電話でのお問い合わせはこちら

03-6858-3030

平日
9:00~18:00